
水泥振動篩是針對水泥、石灰及類似的粉狀物料而設計的一款篩分機械;水泥振動篩多針對于水泥熟料和成品料的分級、異物篩除作用。該設備具有篩分精度高、處理量大、結構簡單、耗能少、噪音低、篩網使用壽命長、密封性好、無粉塵溢散、維修方便、可用于流水線生產中的自動化作業。

水泥振動篩工作原理:
水泥振動篩為雙振動電機驅動。當兩臺振動電機做同步、反向旋轉時,其偏心塊所產生的激振力在平行于電機軸線的方向相互抵消,在垂直于電機軸的方向疊為一合力,因此篩機的運動軌跡為一直線。兩電機軸相對篩面在垂直方向有一傾角,在激振力和物料自重力的合力作用下,物料在篩面上被拋起跳躍或向前作直線運動,從而達到對物料進行篩選和分級的目的。適用于粒度在0.074—5mm,含水量小于7%,無粘性的各種干式粉狀或顆粒狀物料的篩分。大給料粒度不大于10mm.

水泥振動篩應用環節:
在整個生產工藝流程中,不同的環節使用的振動篩是不同的,在整個工藝中需要用到兩種振動篩分設備,水泥熟料振動篩、水泥振動篩。
1、水泥熟料振動篩:就是對水泥熟料進行篩選的振動篩,由于在水泥生產中,將熟料先經細碎機破碎至5mm以下,再用磨機粉碎,可以提高水泥磨的30%左右的產量,并且節電約18%,因此這種新工藝被很多水泥生產企業所采用。為了入磨熟料的粒度達到5mm以下,需要將5mm以上的熟料顆粒選出并重新細碎,所以在細碎機和水泥磨間配備熟料振動篩,這種篩機也可用于生料的分級和篩選。
水泥熟料振動篩采用粗、細兩層篩網,具有篩分效率高,排渣快,壽命長、能耗低,體積小,重量輕等特點,還有使用可靠,安裝、維修簡便,清理篩面雜物及更換篩網、減振彈簧均十分方便等優點。
2、水泥振動篩:作為各種水泥包裝機前級配套設備的水泥振動篩,也是水泥生產環節中必不可少的設備,由于水泥行業對產成品的粒度等級要求很高,因此在產品包裝之前還要經過終的檢查過程,水泥振動篩就是用于篩除水泥等粉狀物料中的結塊、異物,以產品的質量。
水泥振動篩,采用張緊篩網,使得篩網鋼絲所受的疲勞應力小,篩面不出現凹陷現象。由于水泥生產過程中粉塵很大,因此這類振動篩通常采用全封閉式,以減少作業環境的污染。
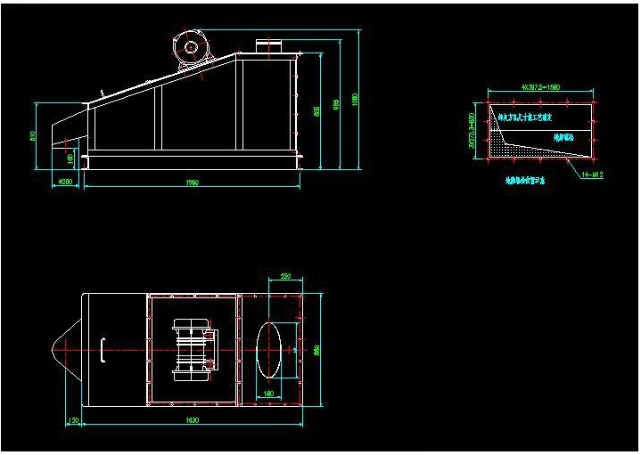
水泥振動篩外形結構圖:

水泥振動篩結構組成:
水泥振動篩結構由機體,篩床,置于篩床上部的入料裝置,振動電機,篩床傾斜布置,篩床上設置有篩片,篩片設有孔結構,篩床為雙層結構,包括通過彈性支撐部件與機體連接的下篩床和通過支撐件與下篩床固定連接的上篩床。能夠適應水泥在隔粗作業中對物料粒度減小、處理量加大的要求,占地少,功耗小,易于控制,結構簡單,維修維護方便,處理量大,適應性強,工作可靠。
水泥振動篩型號參數:

振動篩廠家家友情提示:請通過正規渠道購買振動篩配件,以保障您的合法權益!振動篩廠家請選河南奧創機械:www.yanhonghuo.com/hydt/page_2.html 24小時服務熱線:18937310551
物料直線運行方形篩專家-奧創機械 網站備案:豫ICP備16037295號-13